| 索引号: | 3070211020000083000000/2025081900000113 | 发布机构: | |
| 生效日期: | 2025-08-11 | 废止日期: | |
| 文 号: | 所属主题: | 通知公告 |
关于合水县低空经济创业园建设项目规划批前公示
合水县低空经济创业园建设项目周围住户及单位:
按照《中华人民共和国城乡规划法》相关规定,我局拟对合水县低空经济创业园建设项目进行规划审批前公示,现将有关情况公示如下:
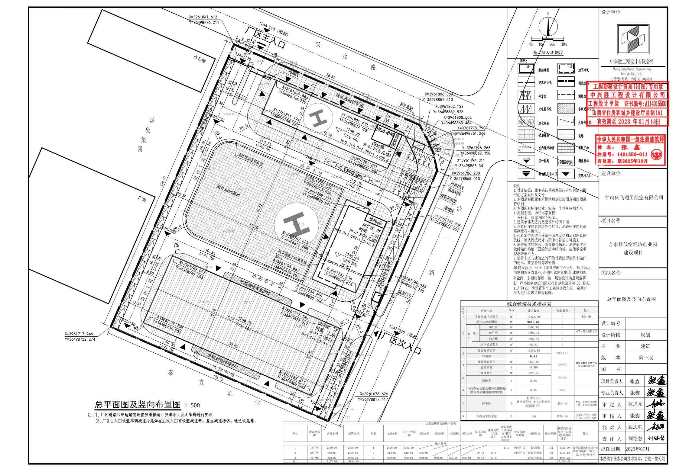
一、项目位置
该宗地东邻经一路西侧,南邻秦直乳业,西邻陇象集团,北邻兴业路南侧。
二、规划条件
用地面积:13879平方米 。
用地性质:工业用地
经济技术指标:绿地率:≤ 15 %,容积率≥0.8,
建筑系数:≥40 ﹪
三、规划方案
按照合发改审〔2025〕15号关于合水县低空经济创业园建设项目拟新建项目占地13879平方米,总建筑面积约9210.65平方米。地上8749.85平方米,地下460.8平方米。新建五层业务楼一幢4800平方米,1号厂房2560平方米 ,2号厂房1309.12平方米,硬化场地3000平方米。配套指挥中心、装配生产线、试飞场、交付中心、培训中心、绿化亮化等附属设施。
方案指标:绿地率8.1 ﹪,容积率0.81,建筑系数:48.5﹪
四、总平面图
详见附图。
现公开征求周围住户及单位意见,如有异议,请在公示期内以书面材料告知我局;逾期未提出异议,视为同意。
公示时间:2025年8月11日至2025年8月17日(7日)
受理股室:合水县自然资源局规划股
地点:合水县自然资源局(合水县西华池镇新民西路9号)
联系电话:0934-5521526

合水县自然资源局
2025年8月11日
账号+密码登录
手机+密码登录
还没有账号?
立即注册